Send inquiry

Early Liberty-Style Villa with Panoramic Views of Lake Maggiore

Luino, Lombardy, Italy

3,405,500 USD
  1. EUR 2.950.000
  1. Historic villa
  2. Year built 1896
  3. 800 m² Usable area
  4. 5,000 m² Lot size
  5. 5 Bedrooms
  6. 5 Bathrooms

This remarkable villa, built in 1896, combines elements of late Historicism with touches of the Liberty style that emerged around the turn of the century in Northern Italy. With refined interior detailing and large windows, the architecture signals the transition into modernity. Its standout feature is the magnificent view of Lake Maggiore framed by the Alpine skyline. 

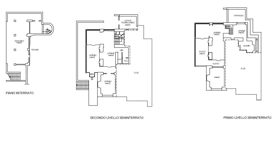
Set on a 5,000 m² private plot, the estate offers a total floor area of 800 m². This includes the main villa, a converted attic, a separate annex with flexible residential or office use, and a variety of recreational amenities. 

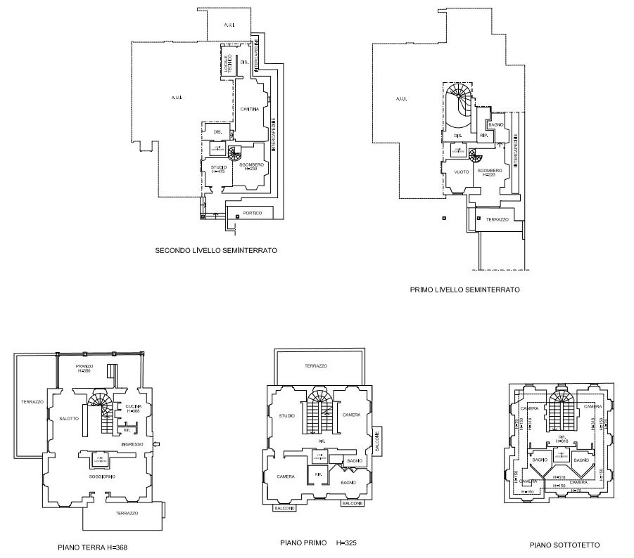
The villa spans four floors, all accessible via elevator or a sweeping staircase illuminated by a large skylight. 

On the ground floor, you’ll find a spacious living room, dining room, and kitchen. Two expansive terraces provide the perfect setting to enjoy the stunning lakeside and Alpine panorama of Northern Italy. 

The first floor is dedicated to the sleeping quarters and features a double bedroom with a private bathroom including a whirlpool tub and a walk-in wardrobe. An additional bedroom with en-suite bathroom and terrace is also located on this level.

The attic floor, measuring 180 m², hosts two full suites, each with its own living area, bathroom, and breathtaking views of the lake.

On the lower ground floor are guest restrooms and a 100 m² basement with high ceilings and large rooms ideal for office use. This area is surrounded by a generous terrace. A mezzanine level created by the double-height ceilings includes three separate rooms.

A self-contained annex with its own entrance is arranged over two levels and includes a private terrace with lake view and offers space for for staff or visiting guests.

The swimming pool is located in an elevated section of the landscaped park, complete with a pavilion, changing room, and outdoor shower. A 60 m² fitness area with large windows adds to the home’s recreational appeal. A 160 m² garage accommodates four vehicles.

For U.S. Buyers:
Are you based in the United States and considering a historic home in Northern Italy? We warmly invite you to visit this exceptional villa in person. Our experienced team is here to assist you every step of the way - whether it's organizing viewings, navigating Italian property law, or guiding you through administrative and tax matters. With in-depth knowledge of the local market and international buyers' needs, we make your Italian property purchase smooth, secure, and rewarding. Contact us for a personalized consultation and start planning your new life on Lake Maggiore.

Legal info

Agency

Stresa Luxury Real Estate

Corso Italia 52

28838 Stresa

Italy
Director
Francesco Papurello
Contact
Landline: +39 0323 32737
Subscribe Stresa Luxury Real Estate

Receive new sales offers by e-mail. The e-mail alert can be deactivated at any time.

Francesco PapurelloWe speak English  We speak Francais  We speak Italiano 

Stresa Luxury Real Estate

Subscribe
  • REALPORTICO-ID
    2504144
  • Updated
    3 months ago
  • Views
    5.03k
  • People reached
    4.36k

Top 10 countries for this historic property

Views last 30 days

Stresa Luxury Real Estate

Discover more historic properties

Historic property in Golasecca, Piedmont
865,800 USD
Villa De Fichard with Boutique Hotel on Lake Maggiore in Belgirate
5,194,800 USD
Villa with panoramic tower, lake view and garden in the spa town of Stresa
2,886,000 USD
More to discover