Terraced House in Switzerland - Village Centre of Frick (between Basel and Zürich)

5070 Frick, Aargau, Switzerland

1,054,700 USD
  1. CHF 850'000
  2. Price negotiable
  1. Country property
  2. Year built 1600
  3. Last modernization 2018
  4. 315 m² Total area
  5. 280 m² Living space
  6. 6 Rooms
  7. 3 Bedrooms
  8. 3 Bathrooms
  9. 4 Floors

This charming historic terraced house in the centre of Frick (5070) combines authentic Swiss character with modern potential. 
It’s ideal for multi-generation living or for those who wish to combine living and working – the converted former barn section can be used as an atelier, studio, or small business space

The property is divided into two connected sections

One part is fully usable and move-in ready, with a bright living room, kitchen, three bedrooms, and two bathrooms. 

The corridor and adjoining area require renovation, giving the buyer the freedom to finish it to personal taste. 

Highlights 

Central yet quiet village location

Shops, train station, bus stop, kindergarten, and schools all within walking distance.

Motorway exit (A3) nearby – quick access to Basel and Zürich

Former barn area with impressive 4-metre-high ceilings – ideal for atelier / studio / office 

Unique open layout with generous living space

Small, easy-to-maintain garden

Quiet west-facing balcony with afternoon sun

Parking for three vehicles: covered carports for two cars + one open guest space

This property offers historic charm, flexibility, and excellent accessibility — a rare opportunity to live and work under one roof in a convenient and family-friendly Swiss location.

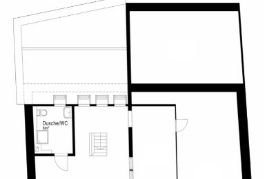
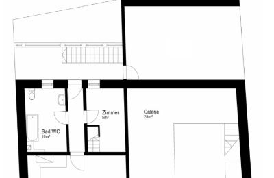
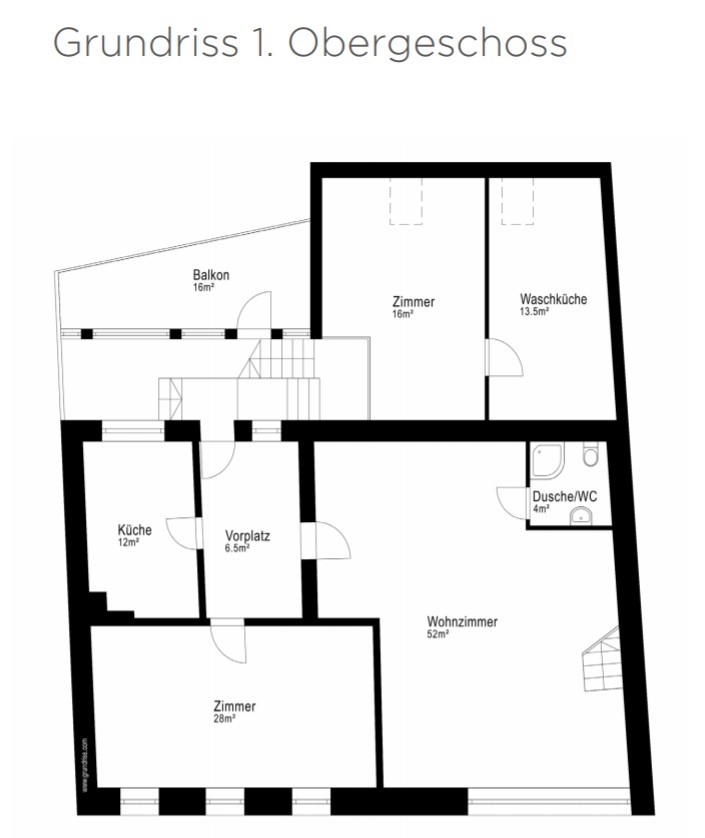
Floor plans

Legal info

Private seller
Eszter Julianna Biro
Fő tér 15
9330 Kapuvár, HU
Contact
Eszter Julianna Biro

Private seller

  • REALPORTICO-ID
    2618500
  • Updated
    Last month
This property is presented as a free listing with local visibility.

With a Premium listing, you maximize your reach and benefit from global visibility, ad-free presentation, detailed statistics, and exclusive promotions. REALPORTICO supports all CMS platforms and offers customized transfer options upon request. Contact us for a tailored quote.

Advertising

Country property Aargau

November 2025

Set up an email alert to hear about new listings, or join Portico Secrets for access to more exclusive, off-market properties.

More to discover